はいさーい!
名護市屋部で展開中の大型分譲地「シャングリラタウン・メーウェバル」で現在、土地から販売中の第三期エリア全43区画の中でも10区画限定となる「オーガニックハウスゾーン」の第4弾参考プラン紹介です!
オーガニックハウスゾーンは当社がライセンスを取得している「オーガニックハウス」のデザインを採用して頂く事を前提に土地から購入頂き、建物は基本自由設計で対応が可能な区画となっております。
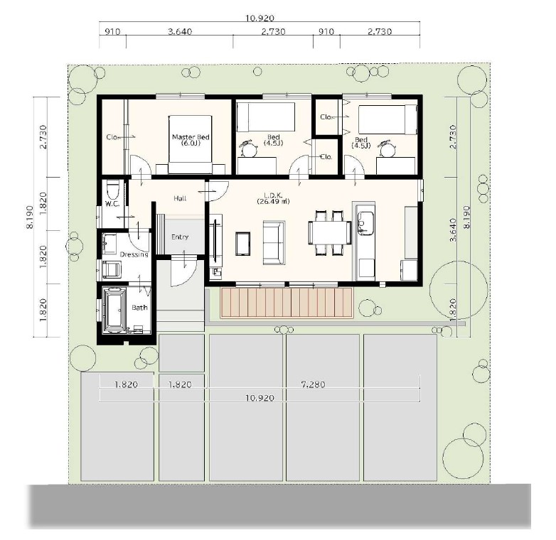
今回は「3-7番区画」のオーガニックハウスゾーンの建築イメージ(参考)をご紹介させて頂きます!




モダンな中にも伝統を感じられる、古き良き時代のオールドハワイのデザインを沖縄の環境に合わせてオマージュした外観。LDKに各部屋がつながる内部導線となっているので、家族の繋がり(集い)を感じられる空間となっております。
こちらは参考プランなので、お客様希望の間取りなどがあれば自由設計でプランからご提案致します!
本分譲地にオーガニックモデルハウスもご用意しておりますので、オーガニックハウスの雰囲気を生でご体感頂けます!
資料請求または見学希望などお気軽にお問合せください。
見学は事前予約制となっておりすので、この機会にご予約のうえ内覧してみてはいかがでしょうか!
↓↓WEBからのご予約は下記の建売物件専用サイトよりお願いします↓↓
サイトからの予約は本文章をクリックでサイトにジャンプします
お電話でのご予約:0120-153-078(担当:具志堅)






















_page-0002.jpg)







